Highland Hall Retail | 2931 West 25th Avenue, Suite 102, Denver, CO

FOR LEASE — Turnkey Salon or Retail Space in Jefferson Park

Type Space Size Year Built Zoning Price NNN Estimate Availability
Retail (Salon) 1,186 SF + Patio and Courtyard 2008 G-MX-3 $39/SF/YR NNN $8.50/SF Now

Turnkey hair salon or general retail opportunity in the heart of Jefferson Park, one of West Denver’s most desirable mixed-use neighborhoods. Located at street level within a modern mixed-use building, this 1,186-square-foot space offers strong visibility, abundant natural light, and a flexible layout suited for a salon, studio, or boutique retail user.

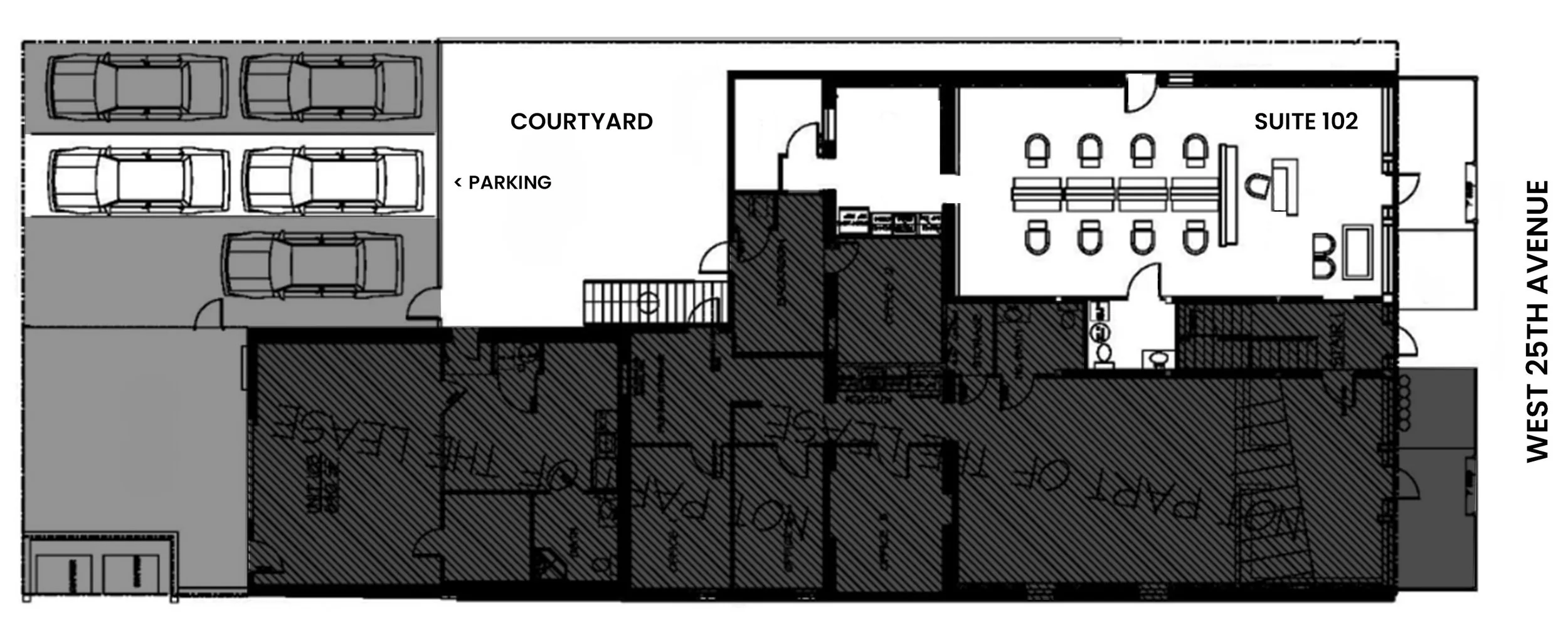
The suite is currently built out as a salon and features exposed brick walls, wash sinks, a kitchenette and color-mixing area, a private restroom, and a small office. The space also includes access to a patio and courtyard area, providing added value for both staff and clients.

Two reserved tandem parking spaces are included in the lease rate. The building is home to two residential units above and existing ground-floor retail, including William Paul Floral Design, creating built-in foot traffic and neighborhood synergy.

Listing Highlights

  • 1,186 SF retail suite with patio and courtyard access

  • Turnkey salon buildout with sinks, kitchenette, office, and private restroom

  • Excellent natural light and interior brick detailing

  • 2 reserved parking spaces included in the lease rate (tandem)

  • Zoning: G-MX-3

  • Ideal for salon, studio, or general retail use

Welcome to Jefferson Park

Jefferson Park is one of West Denver’s most vibrant and walkable neighborhoods, bordered by Speer Boulevard, the Platte River, Colfax Avenue, and Federal Boulevard. The area offers easy access to Downtown Denver, nearby parks, and North Denver’s thriving commercial corridors.

With Empower Field at Mile High anchoring the neighborhood, Jefferson Park benefits from strong pedestrian activity—especially during event and game days—adding energy, visibility, and consistent foot traffic. The combination of residential density, neighborhood retail, and destination amenities makes this submarket especially appealing for service-oriented and customer-facing businesses.

Neighboring Tenant Mix:

Surrounding businesses include Curry Grill Indian Restaurant, Parkside Liquors, Sexy Pizza, Jefferson Park Pub, Cheyenne River Nails, Tuft Construction, Sweet Action Ice Cream, 2914 Coffee, Lockhart & Co Barber Shop, and more—reinforcing Jefferson Park’s position as a lively neighborhood retail hub.


Download Property Brochure

Image Gallery


Floor Plan


Location

 

 

Montana Rae,

Broker Associate

At Henry Group, our clients are at the heart of everything we do. Our complete approach to commercial real estate is driven by the collective decades of experience our team members bring to the table and our genuine desire to help our clients achieve their goals.

Get in Touch
 
Montana Rae

Montana Rae is a Colorado-based commercial real estate leasing and sales advisor with Henry Group Real Estate in Denver. She specializes in providing services for retail, healthcare, office, and fitness/wellness business owners. Click here to read her story.

Next
Next

The Quayle Building Retail | 101 N Broadway, Denver, CO